Pragtfuld lejlighed med 2 soveværelser ved havet – Menton centrum

€585.000

Egenskaber

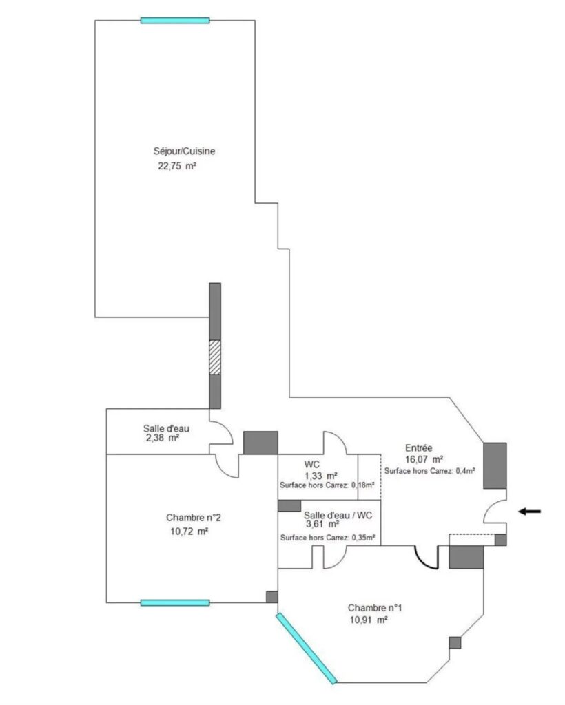
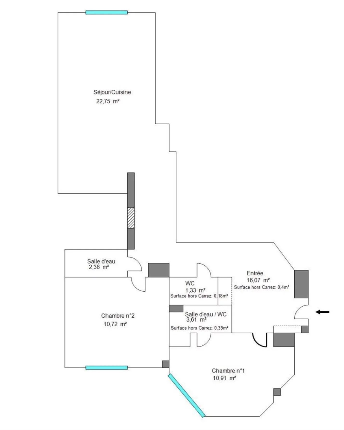
  • 1 Bedroom (10.72 m²)
  • 1 Bedroom (10.91 m²)
  • 1 Cellar
  • 1 Entrance (16.07 m²)
  • 1 Lavatory (1.33 m²)
  • 1 Living/dining/kitchen area (22.76 m²)
  • 1 Shower room (2.38 m²)
  • 1 Shower room / Lavatory (3.61 m²)
  • Air Conditioning
  • Intercom
  • Lift
  • Security door

Detajler

Sjælden mulighed for at erhverve en sydvendt 2-værelses lejlighed på 68 kvm med fantastisk panoramaudsigt og højt til loftet. Beliggende på 3. sal i en “Belle Epoque” ejendom ved strandpromenaden i det centrale Menton.

Den består af en stor entré, en lys stue med åbent køkken med fantastisk panoramaudsigt over havet, et soveværelse med eget badeværelse med bruser og toilet, et andet soveværelse, et badeværelse med bruser og et separat toilet. Aircondition.

Sælges med opbevaringsplads.

  • ID: 97043
  • Views: 8